Per 1 maart 2026 is dit zeer nette tweekamerappartement beschikbaar in het centrum van Hoogeveen. Gelegen aan de bekende winkelstraat die Hoogeveen te bieden heeft: de Hoofdstraat. Op loopafstand zijn diverse eetgelegenheden, winkels en dergelijke te vinden. Voor ieder wat wils!
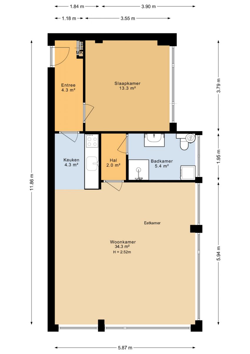
Het complex bestaat uit drie verdiepingen; het appartement is gelegen op de tweede woonlaag. Er bevindt zich een gezamenlijke berging waar bewoners hun fietsen kunnen stallen. De woning beschikt over een ruime woonkamer met open keuken, welke is voorzien van een koel-vriescombinatie, kookplaat en afzuigkap. Via de hal kunt u de ruime slaapkamer betreden.
Via de tweede hal komt u in de badkamer, welke is voorzien van een douche, wastafel, toilet en wasmachineaansluiting.
Op de bovenste verdieping bevindt zich een dakterras waarvan gezamenlijk gebruik mag worden gemaakt met de medebewoners.
| Huurprijs | |
| Kale huurprijs | € 957,26 |
| Voorschot servicekosten | € 100,00 |
| Voorschot gas, water, elektra | € 30,00 |
| Totaal | € 1087,26 |
| Status: | Beschikbaar |
| Wijk: | Centrum |
| Categorie: | Appartement |
| Bestaand / nieuwbouw: | Nieuwbouw |
| Interieur: | Gestoffeerd |
| Huurprijs: | € 957,26 exclusief |
| Woonoppervlakte: | 60 m² |
| Aantal kamers: | 2 |
| Aantal slaapkamers: | 1 |
| Woonlagen: | 1 |
| Ligging: | Bovenwoning |
| Keuken: | Eigen |
| Douche: | Eigen |
| Toilet: | Eigen |
| Buiten: | Gedeeld |
| Huisdieren: | Niet toegestaan |
| Stellen: | Toegestaan |
| Aanvaarding: | 01-03-2026 |
| Min. huurperiode: | 12 Maanden |
| Parkeren: | In de directe omgeving |
| Energielabel: | A |
| Garage / Berging: | Nee |
| Bouwjaar: | 2020 |