Wonen in hartje Zwolle? Dit is jouw kans!
Per 1 mei komt dit prachtige appartement beschikbaar aan de gezellige Oude Vismarkt. Deze sfeervolle winkelstraat ligt parallel aan de Diezerstraat en biedt een gevarieerd aanbod aan winkels, horecagelegenheden en dienstverleners. Ook supermarkten, de bioscoop en het station bevinden zich op loopafstand. Hier woon je dus midden in het bruisende centrum, met alle voorzieningen binnen handbereik.
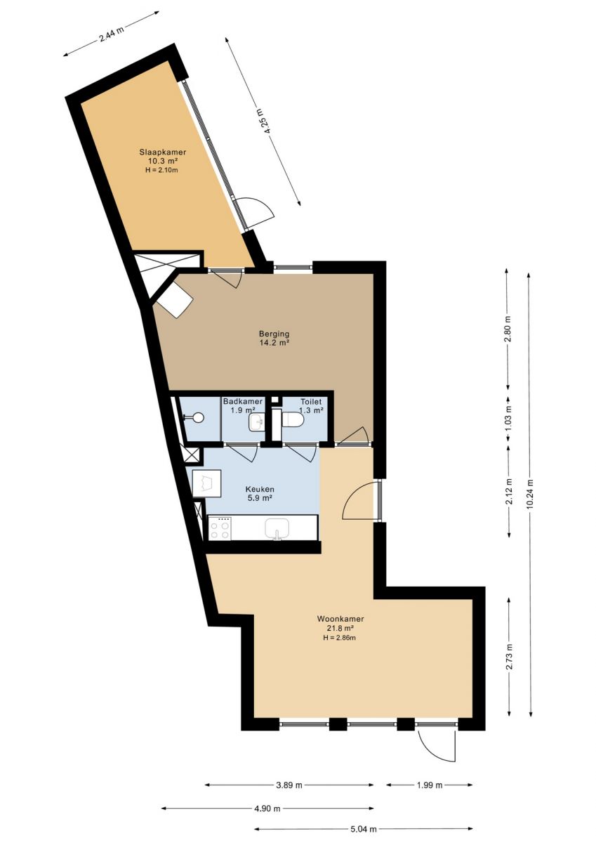
Indeling
Via de gezamenlijke entree en trapopgang bereik je het appartement op de eerste verdieping. Bij binnenkomst stap je direct de ruime en lichte woonkamer met open keuken binnen. De grote raampartijen zorgen voor een aangename lichtinval en geven het geheel een warme uitstraling.
De keuken is uitgerust met een kookplaat, koel-vriescombinatie en afzuigkap. Vanuit de woonkamer heb je toegang tot het ruime balkon, waar je kunt genieten van een mooi uitzicht.
Aan de achterzijde van de woning bevindt zich een extra kamer, ideaal in te richten als werk- of studeerkamer. Vanuit deze ruimte bereik je de aparte slaapkamer.
De badkamer is voorzien van een douchecabine, wastafel en handdoekradiator. Daarnaast is er een separaat toilet aanwezig. Extra pluspunt: je kunt gebruikmaken van een gezamenlijk dakterras aan de achterzijde van het complex.
Kortom: een sfeervol en praktisch ingedeeld appartement op een toplocatie in Zwolle!
Aan de plattegrond kunnen geen rechten worden ontleend.
HUURPRIJS
| Kale huur | € 1261,80 |
| Servicekosten | € 110,00 |
| Gas, water, licht | € 50,00 |
| Totaal | € 1421,80 |
| Status: | Beschikbaar |
| Wijk: | Centrum |
| Categorie: | Appartement |
| Bestaand / nieuwbouw: | Bestaand |
| Interieur: | Gestoffeerd |
| Huurprijs: | € 1261,80 exclusief |
| Woonoppervlakte: | 54 m² |
| Aantal kamers: | 3 |
| Aantal slaapkamers: | 1 |
| Woonlagen: | 1 |
| Ligging: | Bovenwoning |
| Keuken: | Eigen |
| Douche: | Eigen |
| Toilet: | Eigen |
| Buiten: | Eigen |
| Huisdieren: | Niet toegestaan |
| Stellen: | Toegestaan |
| Aanvaarding: | 01-05-2026 |
| Min. huurperiode: | 12 Maanden |
| Isolatie: | Goed |
| Energielabel: | A |
| Verwarming: |
Gas |
| Garage / Berging: | Nee |
| Tuin: | Geen tuin |
| Bouwjaar: |